Overview

Property ID: 2629
  • Residential Complex
  • Property Type
  • 2025
  • Year Built
Design

Description

Residential Complex in Asini area, Tolo. Consisting of Five Villas with pools.

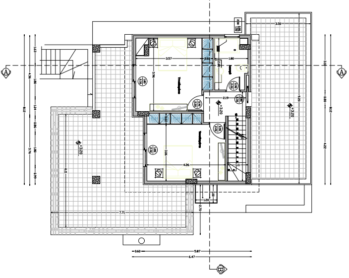
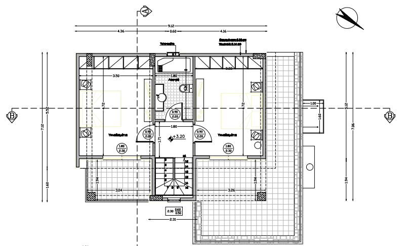
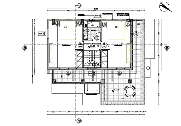
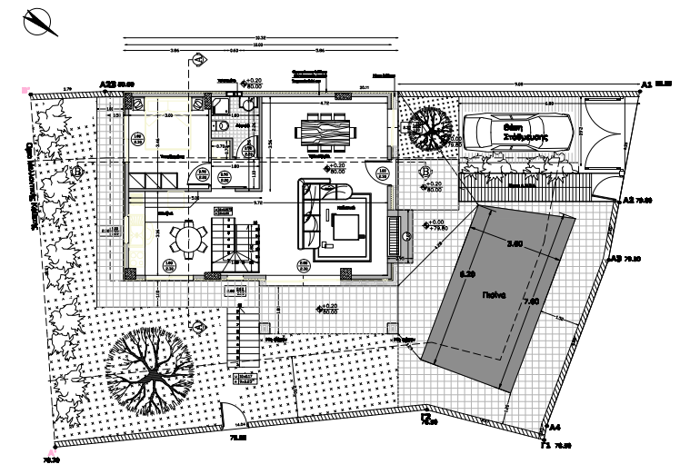
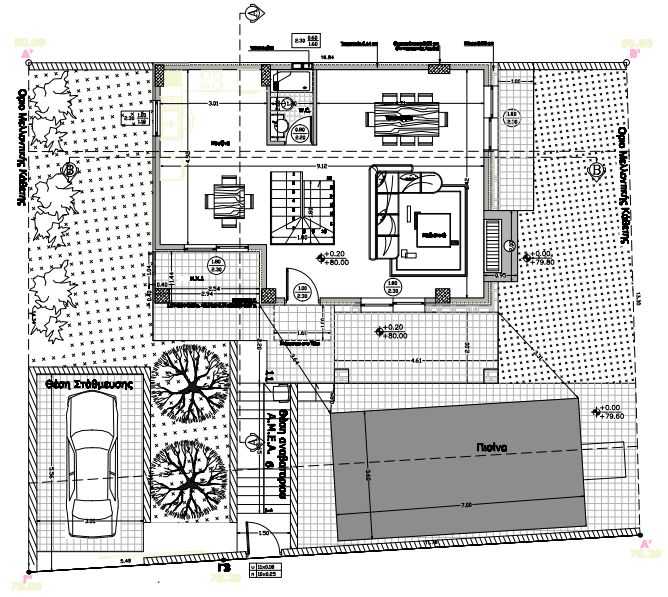
Floor Plans

image

Description:

image

Description:

image

Description:

image

Description:

image

Description:

image

Description:

  • Address Agia paraskevi, Asini
  • Zip/Postal Code 211 00

Compare listings

Compare